Woonoppervlakte
Circa 88 m²
Perceeloppervlakte
Circa 238 m²
Bouwjaar
Gebouwd in 1988
Aantal kamers
5 kamers (4 slaapkamers)

Kruiszwin 4320

1788 RB, Julianadorp (Noord-Holland)

ONDER BOD!

Richtprijs € 310.000, -- k.k.

Let op, voor deze woning geldt een zelf bewoningsverplichting!

Gelegen in een rustige wijk.

De woning heeft een eigen parkeerplaats voor de auto i.v.m. extra grond bij de woning.

Afgesloten middels hekwerk.

De indeling van de woning is als volgt:

Entree, hal met meterkast, toilet en trapopgang.

De woonkamer is ruim, met veel licht inval. Deur naar de royale achtertuin met stenen berging en nog een blokhut.

Op de verdieping zijn drie slaapkamers en een badkamer.

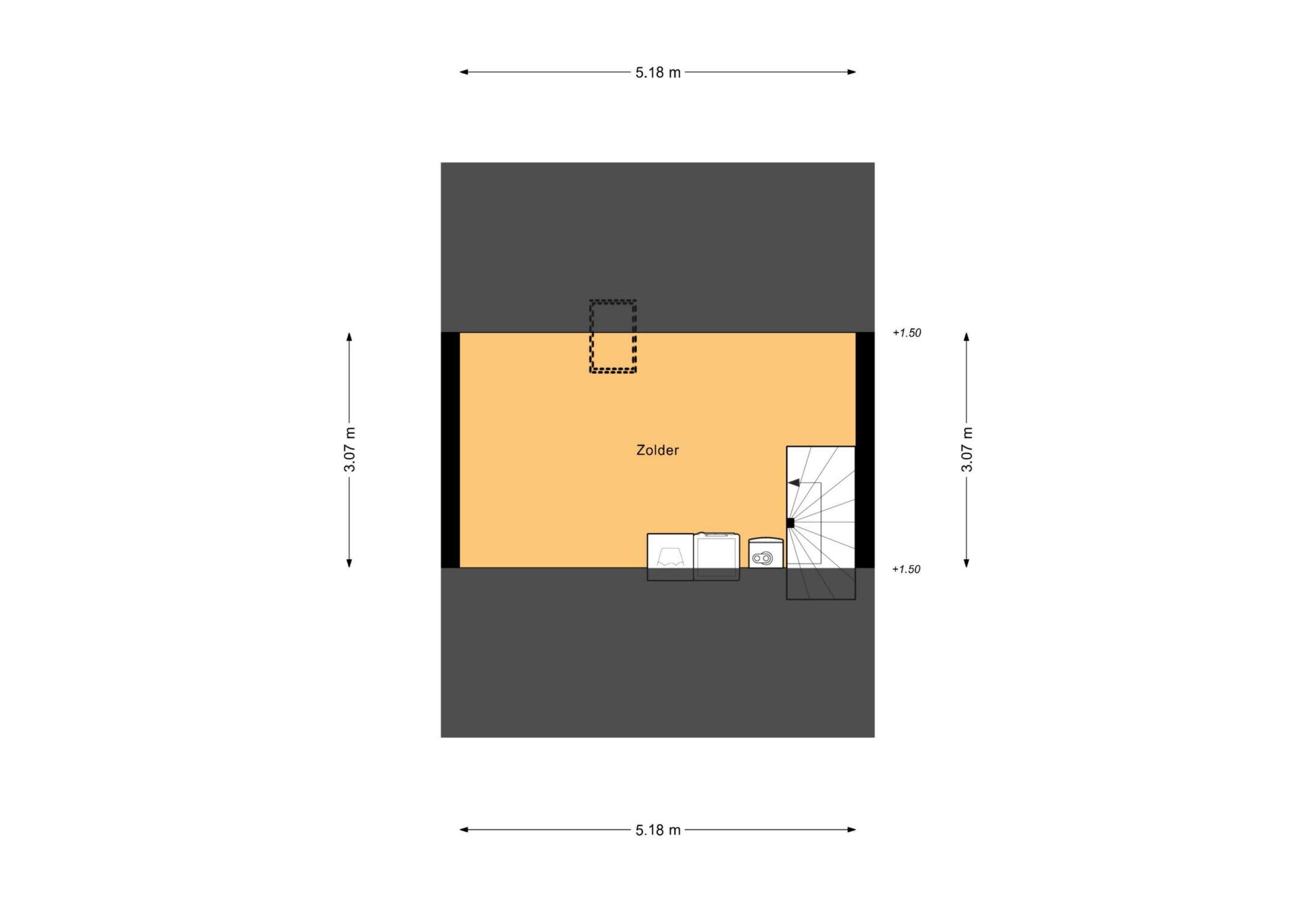
Vaste trap met toegang tot de zolder , met opstelling voor witgoed. Tevens te gebruiken als 4e slaapkamer.

De achtertuin heeft royale uitstraling qua afmeting!

Nabij scholen en diverse voorzieningen.

Voor de juiste indeling verwijzen wij naar de plattegronden.

Bezichtigingen vinden plaats in de week van 8 september t/m 18 september, uitsluitend aan te vragen via Funda.

Alle moeite is genomen om de informatie hierboven omtrent het aangebodene zo accuraat en actueel mogelijk weer te geven. Fouten zijn echter nooit uit te sluiten. Vertrouw daarom nooit alleen op deze informatie, maar controleer bij aankoop de zaken die uw beslissing zouden kunnen beïnvloeden. Voorts heeft alle informatie een indicatief karakter, waaronder doch niet uitsluitend maatvoering; er kunnen geen rechten aan worden ontleend. Verrekening wegens over- of ondermaat is uitgesloten. Het schriftelijkheidsvereiste is op alle via ons aangeboden objecten van toepassing, een aanbieding is vrijblijvend.

Plattegronden

Overdracht

Vraagprijs
€ 299.000 k.k.
Status
Verkocht

Bouw

Object type
Eengezinswoning, hoekwoning
Soort bouw
Bestaande bouw
Bouwjaar
1988

Oppervlakte en inhoud

Woonoppervlakte
88 m²
Perceeloppervlakte
238 m²
Inhoud
296 m³
Externe bergruimte
11 m²

Indeling

Aantal kamers
5 kamers (4 slaapkamers)
Aantal badkamers
1 badkamer en 1 apart toilet
Badkamervoorzieningen
Wastafel, inloopdouche
Voorzieningen
Tv kabel, natuurlijke ventilatie

Energie

Energielabel
C
Energielabel registratie
23-11-2015
Isolatie
Dubbel glas
Verwarming
CV-ketel

Buitenruimte

Ligging
In woonwijk
Tuin
Achtertuin, zonneterras
Afmetingen achtertuin
140 m² (20 meter diep en 7 meter breed)
ligging tuin
Gelegen op het zuidwesten en bereikbaar via achterom

Bergruimte

Schuur / berging
Vrijstaand steen

Parkeergelegenheid

Soort parkeergelegenheid
Openbaar parkeren, op eigen terrein

Energieverbruik in Julianadorp

Energielabel deze woning

Energielabel C

Publicatie energielabel: 23-11-2015

Stroomverbruik per jaar

2240 kWh

(Gemiddelde hoekwoning in Julianadorp)

Gasverbruik per jaar

980 m³

(Gemiddelde hoekwoning in Julianadorp)

* Cijfers zijn afkomstig van het CBS en bedoeld als indicatie en kunnen verschillen voor deze woning

Indicatie hypotheeklasten

Eigen inleg:
Spaargeld / overwaarde

Rente:
Laagste 10-jaars rente

Laagste 10-jaars rente

2,76% - Centraal Beheer Groen... - NHG


2,98% - Centraal Beheer Groen... - 80%

Laagste 20-jaars rente

3,19% - Centraal Beheer Groen... - NHG


3,31% - Centraal Beheer Groen... - 80%

Laagste 30-jaars rente

3,34% - Centraal Beheer Groen... - NHG


3,47% - Centraal Beheer Groen... - 80%


Hypotheek:

Bruto maandlasten: € 0 p/m

Netto maandlasten: € 0 p/m

Hoe berekenen we dit?

Het rentepercentage is gebaseerd op de laagste 10-jaars vaste rente voor één hypotheekdeel. De vermelde rente (2.76% met NHG) is gecontroleerd op 17-09-2025. Deze berekening is gebaseerd op een annuïteitenhypotheek die volledig wordt afgelost, waarbij de maandlasten gedurende de gehele looptijd gelijk blijven. De werkelijke rente en netto maandlasten kunnen variëren, afhankelijk van uw persoonlijke situatie en de hypotheekverstrekker. Raadpleeg een financieel adviseur voor een nauwkeurige berekening en advies. Aan deze berekening kunnen geen rechten worden ontleend; het dient enkel als indicatie.

Documentatie

Kadastrale kaart

Leefomgeving

Plattegronden PDF

Kadastrale-kaart-den-helder-n-5975

Lijstvanzaken-4512

Meetrapport-kruiszwin-4320-1788-rb-julianadorp-nederland

Vragenlijstb-5127-juiste

Woz-waardeloket-kruiszwin-4320-julianadorp

BAG uittreksel

Bezoek onze website

Zonnegrenzen bekijken

Op de kaart

Inwoners in Julianadorp

Cijfers voor postcodegebied 1788

Totaal aantal inwoners
11970 inwoners
Mannen
50%
Vrouwen
50%

Inwoners in Julianadorp

Cijfers voor postcodegebied 1788

tot 15 jaar
16%
15 tot 25 jaar
11%
25 tot 35 jaar
23%
45 tot 65 jaar
31%
65 en ouder
19%

Huishoudens in Julianadorp

Cijfers voor postcodegebied 1788

Eenpersoons zonder kinderen
27%
Meerpersoons zonder kinderen
35%
Huishoudens zonder kinderen
62%

Huishoudens in Julianadorp

Cijfers voor postcodegebied 1788

Huishoudens met één kind
7%
Huishoudens met meerdere kinderen
31%
Huishoudens met kinderen
38%

Woningen in Julianadorp

Cijfers voor postcodegebied 1788

Woningen voor 1945
1%
Woningen tussen 1945 en 1965
1%
Woningen tussen 1965 en 1975
1%
Woningen tussen 1975 en 1985
55%
Woningen tussen 1985 en 1995
27%

Woningen in Julianadorp

Cijfers voor postcodegebied 1788

Woningen tussen 1995 en 2005
15%
Woningen tussen 2005 en 2015
1%
Woningen na 2015
1%
Huurwoningen
20%
Koopwoningen
80%

Overige in Julianadorp

Cijfers voor postcodegebied 1788

Gemiddelde WOZ waarde
€ 202.000,-
Personen onder de 65 met uitkering
Niet beschikbaar

Overige in Julianadorp

Cijfers voor postcodegebied 1788

Adressen per km²
1383
Stedelijkheid (schaal 1 op 5)
60%
Postcode kaart 1788 Gemeente kaart den helder

Korte feiten over Julianadorp

Julianadorp is een dorp in de gemeente Den Helder in de kop van de Nederlandse provincie Noord-Holland, ongeveer 5 kilometer ten zuiden van de hoofdplaats van de gemeente, Den Helder. Aan de zuidzijde grenst het aan de gemeente Schagen en ten oosten aan de gemeente Hollands Kroon. Het dorp heeft 14.695 inwoners (1 januari 2021). 's Zomers zorgen, veelal Duitse, toeristen voor ruim 900.000 overnachtingen per jaar. De inwoners zijn werkzaam in de bollensector, bij de Marine of forensen naar de Randstad. Ook werken velen in Den Helder of in de toeristenindustrie van Julianadorp.

Indien u vragen heeft of u wilt een bezichtiging inplannen, dan kunt u gebruik maken van het formulier hiernaast. Er zal daarna op korte termijn contact met u worden opgenomen.

Marsdiepstraat 176

1784 AT, Den Helder

0223 616 490 info@stevensvastgoed.nl www.stevensvastgoed.nl

Alles voor een tevreden klant

Als onderneming met een sterke maatschappelijke betrokkenheid hechten wij veel waarde aan het leveren van topkwaliteit service. Het is voor ons essentieel om inzicht te hebben in uw behoeften en uw ervaringen met onze advisering en ondersteuning. Uw feedback is voor ons van onschatbare waarde en wordt dagelijks gebruikt om onze diensten verder te verbeteren. Door uw ervaringen te delen, draagt u bovendien bij aan het KWF, waarmee we gezamenlijk investeren in een vruchtbare samenwerking.

Bent u benieuwd naar de ervaringen van anderen met onze dienstverlening? Bekijk dan de klantbeoordelingen op onze website.

Alles voor een tevreden klant
Reviews Stevens Vastgoed

Kruiszwin 4320, Julianadorp

€ 299.000 k.k. - Verkocht

Helaas, deze woning is verkocht!

Net te laat, deze woning is al verkocht. Laat een zoekopdracht bij ons achter zodat wij u direct kunnen helpen wanneer er nieuw aanbod beschikbaar komt.